LOGIN
사이트 메뉴
업체소개
인사말
종류와 특성
오시는 길
냉각탑
비교표
감속기
대향류형냉각탑
구조와 명칭
표준사양
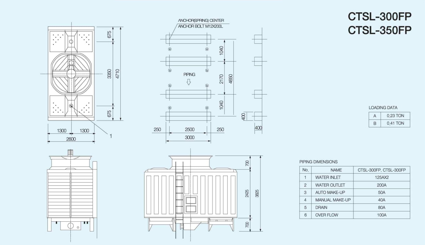
외형도와 기초도
직교류형냉각탑
구조와 명칭
표준사양
외형도와 기초도
포트폴리오
냉각탑설치
냉각탑수리
공사실적
프로젝트
고객센터
공지사항
Q&A
견적문의
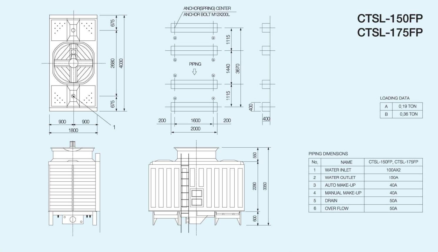
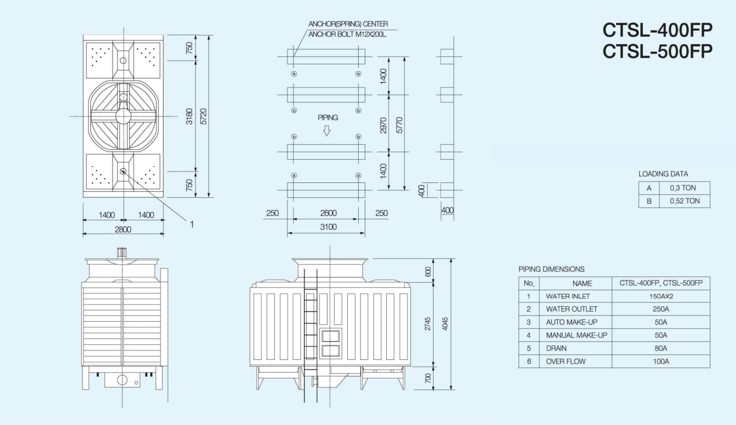
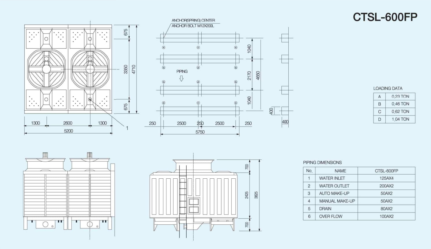
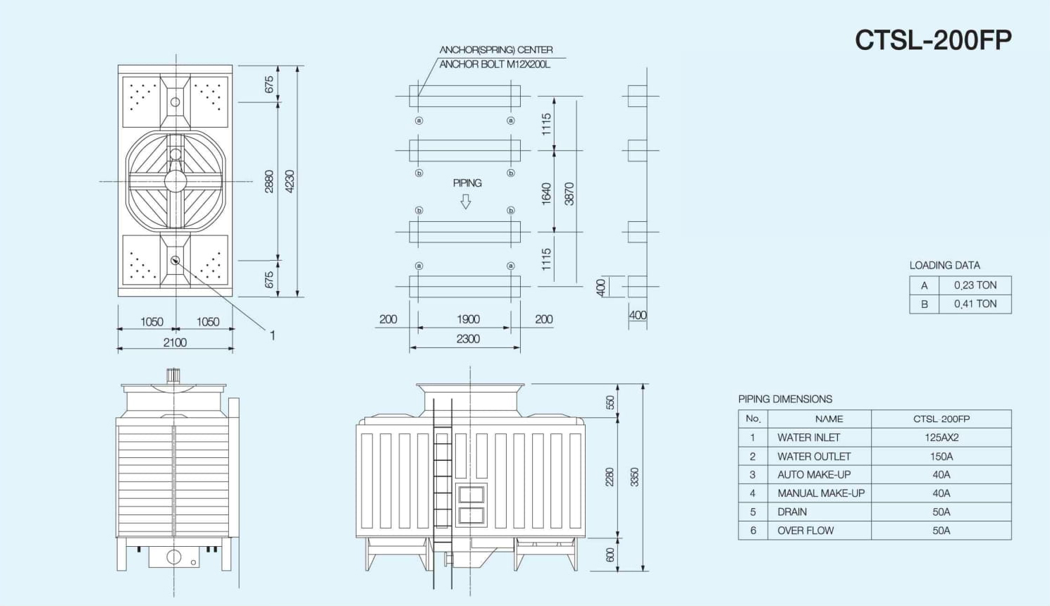
직교류형냉각탑
구조와 명칭
표준사양
외형도와 기초도
직교류형냉각탑
외형도와 기초도
외형도와 기초도